※9/9(日)試験当日の速報から更に分析をして一部更新し、別プランも追加アップしました。
設計課題「地域住民が交流できるカフェを併設する二世帯住宅」
今年度の課題は、想定内のオーソドックスな要求室ばかりでサプライズ条件がなく、プランは比較的まとめやすかったと思われます。ただし、プラン以外において以下のようなサプライズがあり、難しく感じた受験生も多くいたようです。
●エレベーターシャフトについて、床面積に「算入する」。
建築基準法上、容積率算定上の床面積については、エレベーターシャフトは床面積に算入しませんが、容積率算定以外の規定を考えるときは、算入することになります。
算入する、算入しない、引っ掛けのようで釈然としませんが「問題文をよく読んで従う」ことが大切ですね
●外観及び外構計画に配慮する条件。
カフェ(店舗)としての外観(ファサード)や、外構計画が求められました。外観については、主に立面図や計画の要点で表現することになり、例えばカフェとしてのちょっとした看板や外壁をレンガ仕上げの表現にするなどの工夫が求められました。
外構については、「地域住民が交流」という観点から、屋内から出入りできるテラスを設けたり、外の植栽を眺めながらくつろぐために緑豊かに植栽を植えるなどの配慮が必要でした。
●住宅の竪穴部分(階段、エレベーター、吹抜け)は防火区画し、その表記が求められた。
法的な解釈としては、住宅部分が200㎡を超えた場合に、階段、EVシャフト、吹抜け等について竪穴区画が必要となります。
ただ、試験の問題文の中で、「住宅の竪穴部分(階段、エレベーター、吹抜け)は防火区画してください」とあるので、200㎡超えていなくともこの条件に従う必要があると考えられます。あくまで、問題の指示に従うことが第一優先です。
●延焼のおそれのある部分の範囲(破線)を記入し、隣地境界線までの離れを記入することが求められた。
【延焼のおそれのある部分】
道路側:道路中心線から、1階にあっては3m以下、2・3階にあっては5m以下。
隣地側:隣地境界線から、1階にあっては3m以下、2・3階にあっては5m以下。
→課題の道路条件から、道路側については延焼ラインの記入は不要。建物の配置によっては、北側、東側の隣地境界側に延焼ラインの記入が必要となります。
延焼ラインについては学科の法規で学習したとは言え、かなり難しい条件でした。
正しく記入できた受験生は、少なかったのではないでしょうか?延焼ラインにかかる開口部には全て、防火設備の表記が必要となります。
●計画の要点において、環境負荷低減(省エネルギー等)に関する工夫点が求められたこと。
これも記述としては難しい問題でした。例えば、南面や西面に庇やルーバーなどを設けて日射を遮る工夫をしたとか、ガラスにLow-Eガラスを使用したなどが一例でしょうか。
●部分詳細図は、3階屋根部分の要求であった。
今年はRC造課題で初めての部分詳細図の出題されたことで、作図時間が懸念されましたが、多くの受験生が時間内に作図完成まで持っていけたようです。TACでは7課題中、後半の2課題で3階屋根部分の練習をしていたので、問題なく対応できたのではないでしょうか。
【総評】
延焼ライン、防火設備の記入及び防火区画については、多くの受験生がつまずいた所だと考えます。どうしてもそこだけに注目しがちですが、皆ができていない=この部分では差がつかない、ということになります。
この試験は相対試験です。上記以外の所で条件違反がなく、要求事項の記入漏れの少ない、表現の良い図面を描けたかどうか?で合否が決まってくるのではないでしょうか。
それでは、TACオリジナル解答例をご覧下さい。
※パーフェクトなプランではないかもしれませんが、合格するには十分だと考えます。
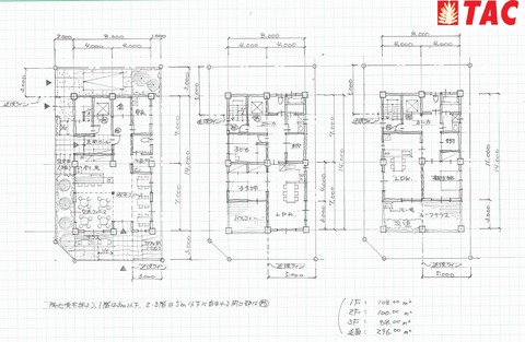
プラン1
※2階の子夫婦寝室の動線には目をつぶっています。
※2階バルコニーにおいて、十分な開放性がない場合、一部床面積に算入することも考えられますが、その場合でも2㎡プラスで298㎡となり、面積オーバーとはなりません。
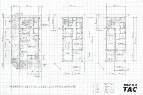
プラン2
※西側道路に平行に駐車を設けたパターンです。
※交差点の「歩道の斜線部分」に駐車のためのアプローチを計画してはいけません。「駐車スペースを計画してはいけない」ではありません。(このプランのアプローチは(車の道路からの出入り)は斜線の範囲から外しています。問題文はよく読まないといけませんよ
)
※ブログにコメント頂いた方々
個別の対応については際限がなくなるため、申し訳ございません


コメント
コメント一覧 (14)
延焼ラインに関わる減点の配分が知りたいです。
同じ減点だと納得いかない。
延焼ラインも間違えてたし。。。もうだめかな。。。