本日、一級建築士設計製図再試験を受験された皆様、
課題発表後、4カ月にも渡る長い間の受験勉強、
さらに本日の再試験、本当にお疲れ様でした。
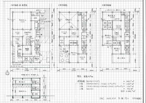
さっそく第一報のプランをご確認ください。
事務室が過小ですが。。
講評としては、初見では、10/13の本試験とほとんど変わらないように見えつつ、
実際に解いてみると、まったく違う難しさがある試験となりました。
難しさの主な要因としては、次の内容が挙げられます。
1.屋上庭園の設置階が2階であること。
したがって、多目的ホールの上部には計画できません。
2.多目的ホールの設置階は、記述(1)のとおり、
講演等において、多目的ホールを多くの者が利用する場合があることを
踏まえると1階が想定されますが、
講演等において、多目的ホールを多くの者が利用する場合があることを
踏まえると1階が想定されますが、
屋上庭園を避けて計画しなければなりませんので、
上記プランでは多目的ホールは北側に計画しています。
3.アトリエ関連諸室は、屋上庭園との関係で2階と決まりますが、
多目的ホールを1階に設けたときは、
アトリエ関連諸室を2階にすべて計画するのが面積的に厳しいと思います。
また、展示関連諸室が1階と3階に分かれていいのか
という迷いも生じやすいところですが、必然的にそうなってしまいます。
という迷いも生じやすいところですが、必然的にそうなってしまいます。
4.駐車場等を設けるために、東西3スパンの計画が想定されますが、
南北に細長い計画は難しくなりやすいといえます。
南北に細長い計画は難しくなりやすいといえます。
5.本館との関係から、メインアプローチは北東が想定されるため、
管理諸室が南東になるのも計画が難しくなる要因です。
管理諸室が南東になるのも計画が難しくなる要因です。
6.10/13の本試験と同様、8mスパンなどを活用したスパン調整や、
PC上部の諸室の計画なども活用しないとまとまりにくい課題であったと言えます。
PC上部の諸室の計画なども活用しないとまとまりにくい課題であったと言えます。
以上、簡単な講評ですが、第一報とします。
皆様、本当にお疲れさまでした。
---------
【受講生の皆様にお知らせ】
TAC受講生の皆様にはマイページ上などで今回の試験のアンケートを12/11(水)夕方ごろUPする予定ですので、ご協力をお願いします。
---------
【設計製図セミナー日程変更について】
当初予定していた12/20および1/29(水)のセミナーについては、試験が延期されたため中止とさせていただきます。
2月より順次実施して参ります。詳細はこちら→
どうぞよろしくお願いいたします。(2019年11月29日 現在)
