※第一報から、更に分析をして一部更新するとともにプランをアップしました。
設計課題「小規模なリゾートホテル」
今年度の課題は、細かな条件の指定が多く、問題条件を読み取ることに苦労した方も多いと思います。結果として、難易度の高い試験であったと思います。その要因として、大きく次の2点があげられます。
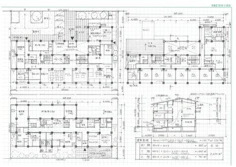
配置図については、平面図兼用配置図の出題でした。南傾斜の敷地で、北道路の設定は順当な出題でしたが、「車回しが12m円内接の条件」から北西部分に大きなスペースを計画しなければならず、建築物の計画が一部L型となるなど、配置計画に大きな影響を与える条件でした。
次に、客室の配置計画が非常にむずかしい課題だったと思われます。「全居室を明峰(東南方向)や湖の眺望に配慮する」という条件から、北側配置は避けるべき条件でした。そのため、客室の配置については、最良景観の東側及び南側、それに準ずる西側(湖の眺望が得られる)に限定されました。客室数を確保するためには、「間口心々4m以上」の条件から、スパンを二つ割りの計画とし、8m×6mのグリッド計画とするか、又は6m×7mのグリッドとするならば、1階に一部の客室を南側に配置するなどの対応が必要です。
〔課題の概要〕
1.建築物の規模について
今年の延べ面積は、順当に計画すると上限2,800㎡程度の計画となり、かつ、屋内利用のピロティは面積に算入することから、面積調整に注意が必要な課題でした。一方、建ぺい率60%の条件については、車回しの計画があることから特に計画上厳しい制約にはならなかったと考えられます。
2.アプローチ計画について
アプローチは、北側道路であり、「車回しから西側共用駐車場へのアプローチができるようにする」との条件から、車回し、車寄せ及び駐車場の配置は、敷地の北西配置が妥当で、共用駐車場への車と人の車路及び歩行者通路の計画が求められます。サービスアプローチは、北東側又は北西側のいずれかとなります。
3.屋外スペースの計画
リラクセーションスペースは、湖側の地上に50㎡以上の出題でした。5m×10m程度のスペースがあれば、配置計画に影響する規模ではなかったと思います。配置については、「名峰や湖の景色を楽しむ」条件から、東南の位置が最適です。特に、浴室とトレーニングルームとの動線に配慮する条件でしたので、浴室とトレーニングルームの設置階は地下1階と考えられます。
【TACオリジナルプラン 6×7グリッド】
4.課題の特色に係る要点の整理
①バリアフリー法に規定する特別特定建築物の計画
特に留意すべき点として、車いす使用者用客室である客室Bは、便所浴室ユニットの寸法を2m×3mとし、室内に1.5mの転回スペースを設けるほか、扉を引き戸にし、段差を設けない計画が求められます。
②パッシブデザインを積極的に取り入れた計画について
要求にはありませんでしたが、積極的に、積極的に吹き抜けを設け、勾配屋根を活用した天井高さ、空間構成、自然採光や通風経路の確保がプラス評価につながる課題です。
③斜面地に考慮した計画について
斜面地の高低差を活用した、地下1階の階高を4mとする計画となります。また、斜面地部分に関し、良好な地盤である北側平坦部分は出来るだけ造成を最小限にとどめて、南側の軟弱地盤を造成し、地下1階を計画するのが妥当なところです。したがって、地下1階のスパン割は、南北2~3スパンの計画が最も適切です。
④車回し、車寄せ、駐車場の計画について
北側のエントランス部分については、車回しが12m円内接の条件であったことから、北側道路から最低14m(車回し12.5m+歩行者通路2.5m)後退させた位置としなければならない条件です。
5.ゾーニング・動線計画について
①地下1階について
・地下1階の構成としては、屋外のリラクセーションスペースと関連付けて、浴室(260㎡)及びトレーニングルーム(100㎡)を配置し、その他機械室(電気室70㎡+機械室140㎡)を設けるのが妥当なところです。
・空調機械室は約30㎡~40㎡程度必要となりますが。地下1階に設けられない場合は、1階に計画することも考えられます。
・浴室については、露天風呂が要求されましたが、上部階からの傍観に配慮してピロティ形式で計画するのが適切です。その場合、「屋内用途等に供するピロティは、床面積に算入する」との課題条件ですから、床面積に算入し、かつ浴室の要求面積に含めます。
・地下1階は通風経路の確保や自然採光の確保が難しいことから、余裕があれば吹抜を積極的に取り入れた計画が望まれます。
②1階について
・1階は、エントランス、ラウンジ、地域ブランドショップ、レストラン、コンセプトルーム(ワークショップ等ができる多目的室と考えておいてよいでしょう)及び管理部門を計画しなければなりません。
・コンセプトルームは、設計条件から、その体験を通して「地域住民との交流」が条件ですから、なるべくアクセスしやすいエントランス近くが望ましいと思われます。
・北側に設けるエントランスホールは、パッシブデザインに配慮し、出来るだけ吹抜けを計画するなど明るく開放的にすることでより良い計画となります。
・レストラン厨房へは管理側動線の通用口からアプローチさせるか、又はそれとは別に外部から直接アプローチさせるかのいずれかとして、食材の搬入やゴミ出しに配慮しなければなりません。
・レストラン客席は、名峰や湖を臨む側に配置しなければなりません。
③2階について
・先述のように、全室眺望側に客室を配置する点が、この課題を最も難しくしている要因です。8mスパンの二つ割りとした計画として客室を2階だけで計画するか、又は6mスパンで計画する場合は、一部の客室(車いす使用者用客室B2室)を1階に配置する計画が考えられます。
・二つの直通階段に至る歩行距離、及び重複距離の図示が求められました。直通階段の一つに至る歩行距離は、50m(最長60m)、重複距離は25m(最長30m)です。2階の計画は、L型配置となりますので、直通階段に至る歩行距離の規定に十分注意しなければなりません。歩行距離又は重複距離に難があるようであれば、屋外階段を計画して対応することができます。
6.パッシブデザイン及び設備計画について。
・計画の留意点で、太陽熱、地中熱、井水の自然エネルギー利用がうたわれています。
・太陽光発電だけでなく、太陽熱集熱パネルを利用した給湯設備とすることができます。
・空調設備は、「外気処理空調機+ファインコイルユニット方式とする」と指定されました。すなわち単一ダクト方式で給気・還気し、各客室にも冷温水を送り、パーソナル空調する方式です。空調機械室から各階へのDSの計画が必要です。空調負荷を低減するために、アースチューブを利用した地熱利用システムを採用することが有効です。
・給水設備への井水利用などがあげられます。
7.構造計画について
地盤条件については、片側土圧・水圧が作用し、南の一部が軟弱地盤であることから、滑動抵抗が高く、軟弱地盤の不同沈下に配慮して、根入れ2.5m(軟弱表土の深さ)程度のべた基礎とした計画が順当なところです。
以上、平成29年 一級設計製図試験の講評です。

